Project Description

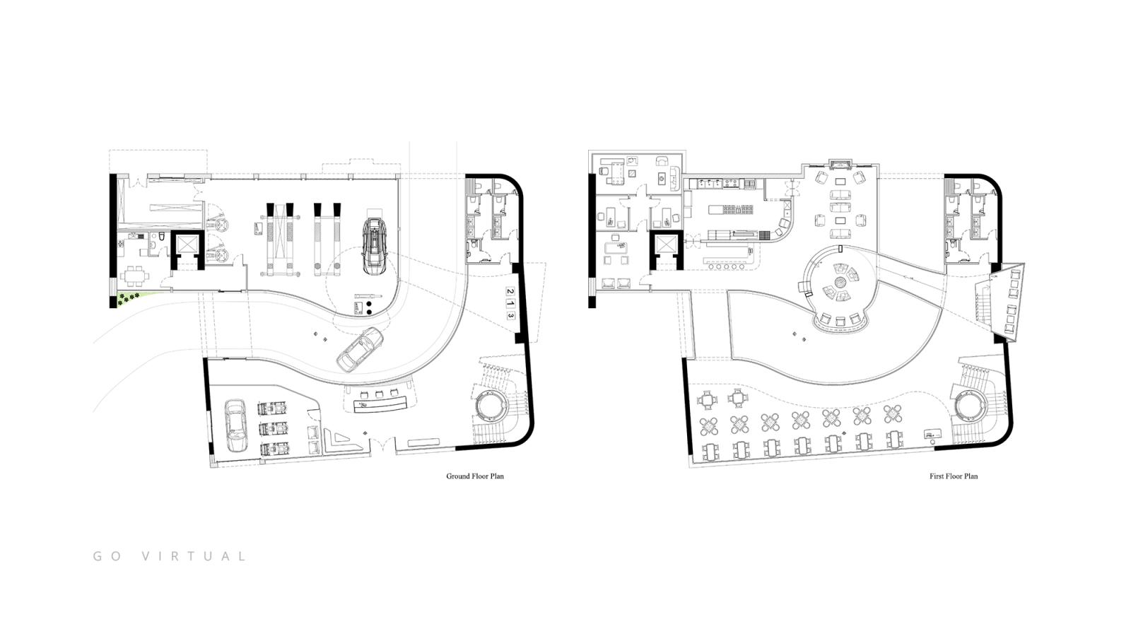
Step into a world where architectural innovation meets mechanical elegance. "Harmony in Motion: The Crankshaft Haven" is an extraordinary architectural concept that draws inspiration from the intricate workings of an internal combustion engine. This charming design combines functionality with a captivating visual narrative, delivering a space that is both awe-inspiring and harmoniously balanced. This conceptual 3D space is inspired by the rhythm, motion, and form of a crankshaft — reimagined as a gallery-like environment where engineering meets elegance. The design features curved seating, industrial materials, and layered lighting to reflect the precision and repetition of mechanical systems. Every element is sculpted with purpose, balancing symmetry and motion while creating a space that feels both sculptural and serene. This project was a creative exploration — an intersection between design, mechanics, and immersive visualization.